<img height="1" width="1" style="display:none" src="https://www.facebook.com/tr?id=3304284026540323&amp;ev=PageView&amp;noscript=1">
P30-6LI48-208
General Product Information

Product Series: Pillar
Output: 30000 Watts / kW
Battery Capacity: 30.6 kWh

Product Overview

The P30-6LI48-208 is a 30 kw (30000-watt) three-phase UPS system with a 30.6 kWh lithium-ion battery bank, delivering instant battery backup power at 208 VAC or mission-critical applications. Designed for seamless emergency power protection during outages, it ensures reliable, high-capacity performance when utility power fails.

This Pillar series hardwire system easily integrates into your building's electrical system. Its compact design makes it suitable for places where space is limited while its bigger capacity ensures uninterrupted power with large power requirements or extended time requirements.

Wiring Diagram

Diagram shows power flow and schematics only; see the table on the next page for exact quantities of connections and controls.

281 FIELDS LANE - SUITE 2B - BREWSTER, NY 10509 1-800-765-3237 | www.mediproducts.net
P30-6LI48-208
AC Electrical Specifications
General AC Input Line Power Output Load Power
Wattage 30000 Voltage 208 Voltage 208
Phase Type Three Conductor Size 2 AWG Conductor Size 2/0 AWG
Surge Wattage 60000 Amperage 150 Amperage 150
Frequency 60 Wire Configuration Hot, Hot, Hot, Neutral, Ground Wire Configuration Hot, Hot, Hot, Neutral, Ground
Waveform Pure Connection Spec Terminal Block Outlets/Breakers
Transfer Time 20 ms Connection Type Terminal Block
Bypass Switch Not Included
DC Electrical Specifications Available Accessories
Battery Type LiFePo4 Power Outage Alert Optional
Battery Capacity 30.6 kWh Remote Battery Monitor Yes
DC Voltage 48 Alarm Dry Contacts Yes
Standards
Inverter UL 1741
Battery UL 1973
Enclosure/System Specifications
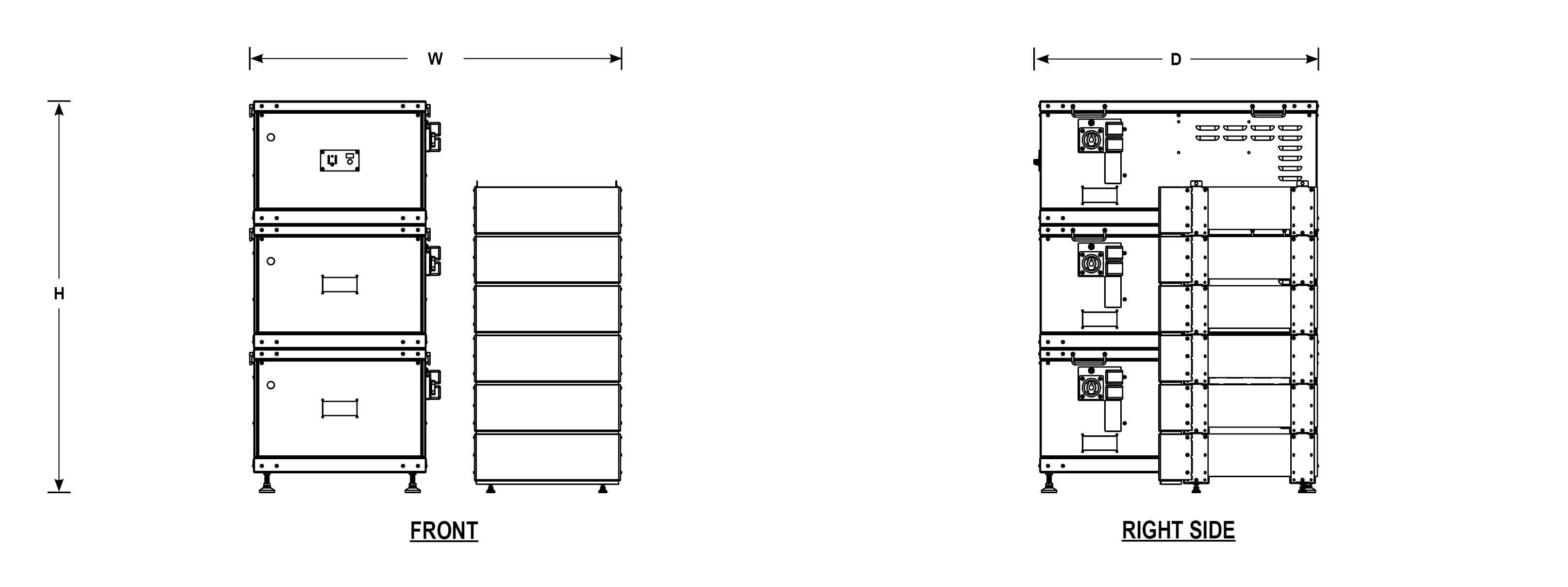
Cabinet Material White Coated Steel Tower Count 3 Height (in) 48
Inverter Cabinet Count 3 Weight 1056 lb Width (in) 57
Battery Module Count 6 Heat Output 54 BTU Depth (in) 34
Dimensional Drawing
Dimensional Drawing
281 FIELDS LANE - SUITE 2B - BREWSTER, NY 10509 1-800-765-3237 | www.mediproducts.net